このページの本文へ移動
分譲住宅
新着

札幌市白石区

スマートハイムプレイス北郷

スマートハイムプレイス北郷_イメージ

光と開放感を感じる、吹抜けのある明るい暮らし
北郷ICが近く、市外へのアクセス◎


札幌新道至近で、JR白石駅も利用可能。公共交通機関・車のアクセス良好な立地。

光と開放感を感じる、吹抜けのある明るい暮らし

ホワイトを基調とした空間にグレーのキッチンが映えるLDK(2026年2月撮影)
吹抜けと大開口のコーナー窓から光が射し込むリビング(2026年2月撮影)
配膳・片付けがしやすい横並びのダイニングキッチン(2026年2月撮影)
作業スペースが広いⅡ型キッチン。食器洗い乾燥機とワイドな収納を完備(2026年2月撮影)
日用品のストックに便利なパントリー付き。扉付きなので生活感を隠せます(2026年2月撮影)
キッチンでお料理中も目の届く洋室1。お子様のプレイルームに◎(2026年2月撮影)
収納量のあるワイドな洗面化粧台を備えたサニタリー(2026年2月撮影)
インテリアに合わせて柔らかな色で設えた、疲れを癒すバスルーム(2026年2月撮影)
手洗い器を備えた1階トイレ(2026年2月撮影)
朝の混雑時に便利な2階トイレ(2026年2月撮影)
主寝室には読書やPCスペースとしても活用できるカフェスタイルなカウンターを完備(2026年2月撮影)
2人分の衣類を収納できる大容量のWIC(2026年2月撮影)
5.2帖の洋室2。ベッドや勉強机を置けるゆとりのある広さです(2026年2月撮影)
明るいインテリアで設えられた洋室3(2026年2月撮影)
間接照明の光が空間に広がりを感じさせる玄関(2026年2月撮影)
除雪道具も収納いただける大容量の玄関クローク(2026年2月撮影)
外観パース(※パースは図面を基に描いておりますので、実際と多少異なる場合があります。)
16
建物No 1
販売価格 5,598万円(税込)
土地面積 167.28㎡(50.60坪)
建物面積 102.36㎡(30.96坪)
1F 面積 56.13㎡(16.97坪)
2F 面積 46.23㎡(13.98坪)
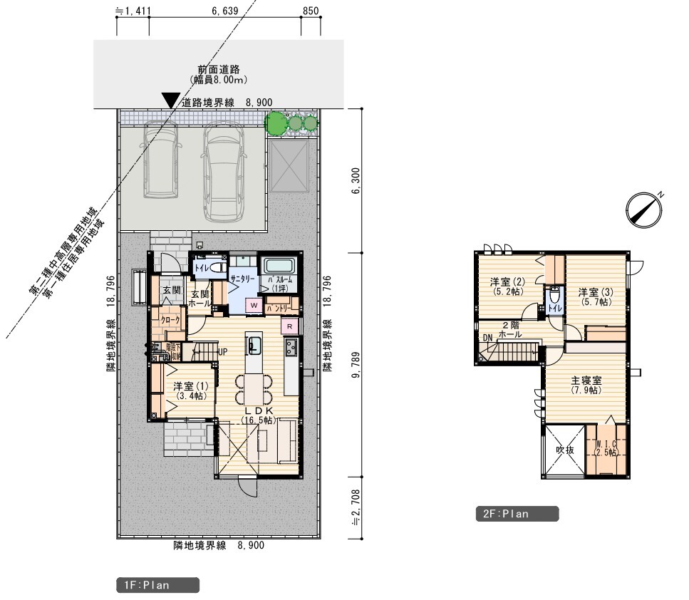
間取り

※プラン図は図面を基に描いておりますので、実際と多少異なる場合があります。家具・小物・外構は価格に含まれます。洗濯機・冷蔵庫・車は価格に含まれません。

YouTube Thumbnail

  • 太陽光発電_アイコン 太陽光発電
  • 蓄電池_アイコン 蓄電池
  • HEMS_アイコン HEMS
  • 家具付_アイコン 家具付
  • 外構工事_アイコン 外構工事
  • エアコン_アイコン エアコン
  • 全室照明付_アイコン 全室照明付
  • カーテン_アイコン カーテン
  • 食洗機_アイコン 食洗機
  • ウォークインクローゼット_アイコン WIC
  • 太陽光発電システム
    太陽光発電システム
    ①もしもの災害時でも日中電気を使える安心。②ソーラー発電で月々の光熱費が抑えられます。③自宅で電気を作って暮らすエコな暮らしをサポート ※メーカーのモデルチェンジにより形状が変更となる場合があります。※①事前に計画したコンセントでのみ電力使用が可能
  • 蓄電システム(4.9kWh)
    蓄電システム(4.9kWh)
    万が一の停電時に電気を供給できる蓄電池システムです。ご自身で切り替える必要がありません。
  • スマートハイムナビ(HEMS)
    スマートハイムナビ(HEMS)
    電力状況を見える化し、省エネをアドバイス。空調機器などを外出先からスマホで操作。子どもの帰宅や宅配便をスマホに通知。※対象の機種には制限があります。事前にアプリのダウンロードが必要です。モデルチェンジにより仕様や形状が変更となる場合があります。画像はイメージです。
  • 省エネ性能ラベル
    省エネ性能ラベル
    ※使用環境等によってはエネルギー収支がゼロにならない場合があります。
  • スマートキー
    スマートキー
    リモコンを携帯してハンドルを押すだけで鍵開錠できます。お買い物袋を提げているときでも鍵の取り出しが不要ですのでラクチンです。
  • 子育てグリーン住宅支援事業対象
    子育てグリーン住宅支援事業対象
    この物件を対象とした補助金の適用には以下が条件となります。不動産売買契約書締結期限:2027年2月1日迄。物件の引き渡し・ご入居期限:2026年6月30日迄。※その他要件は営業担当までお問い合わせください。

主な建物仕様・設備詳細

・太陽光発電システム3.22kW・蓄電池(ニチコン製)4.9kWh・HEMS
・家具付(ソファ・ダイニングセット・TVボード・ラグマット・センターテーブル)
・エクステリア(アスファルト舗装・民地石・化粧砂利・防草シート・植栽・割栗石・インターロッキング・物置・ポールライト) 
・エアコン1台(リビング)
・高効率石油給湯専用ボイラー(エコフィール)
・高効率石油暖房専用ボイラー(エコフィール)
・食器洗い乾燥機
・カーテン類
・照明器具(全室LED)
・TVアンテナ(地デジ・BS)

北海道セキスイハイム株式会社

011-709-8520

営業時間/9:00〜17:30 定休日/火・水曜日