このページの本文へ移動
  1. トップ >
  2. 展示場一覧 >
  3. 札幌近郊エリア ─
  4. スマートハイムプレイス野幌住吉町モデルハウスNo.2

スマートハイムプレイス野幌住吉町モデルハウスNo.2

パルフェ 住宅展示場 予約制
NEW OPEN
2025.11.29 Sat
スマートハイムプレイス野幌住吉町モデルハウスNo.2_外観
外観
スマートハイムプレイス野幌住吉町モデルハウスNo.2_LDK
LDK
スマートハイムプレイス野幌住吉町モデルハウスNo.2_リビング
リビング
スマートハイムプレイス野幌住吉町モデルハウスNo.2_キッチン
キッチン
スマートハイムプレイス野幌住吉町モデルハウスNo.2_洋室1
洋室1
スマートハイムプレイス野幌住吉町モデルハウスNo.2_洋室1 書斎コーナー
洋室1 書斎コーナー
スマートハイムプレイス野幌住吉町モデルハウスNo.2_サニタリー
サニタリー
スマートハイムプレイス野幌住吉町モデルハウスNo.2_バスルーム
バスルーム
スマートハイムプレイス野幌住吉町モデルハウスNo.2_1階トイレ
1階トイレ
スマートハイムプレイス野幌住吉町モデルハウスNo.2_2階ホール
2階ホール
スマートハイムプレイス野幌住吉町モデルハウスNo.2_2階トイレ
2階トイレ
スマートハイムプレイス野幌住吉町モデルハウスNo.2_主寝室
主寝室
スマートハイムプレイス野幌住吉町モデルハウスNo.2_主寝室内WIC
主寝室内WIC
スマートハイムプレイス野幌住吉町モデルハウスNo.2_洋室2
洋室2
スマートハイムプレイス野幌住吉町モデルハウスNo.2_洋室3
洋室3
スマートハイムプレイス野幌住吉町モデルハウスNo.2_玄関
玄関
16

展示場見学のポイント

POINT

バーチグレーが映える、シックモダンな上質空間。
やわらかな光がひろがる空間で、上質な時間を過ごせます。
ぜひ、現地にてご体感ください。

  • 20坪台
  • 30坪台
  • 40坪台
  • 50坪台
  • 平屋
  • 2階建て
  • 3階建て
  • 二世帯
  • デザイナーズハイム
  • 賃貸住宅
  • 傾斜屋根
  • タイル外壁
  • 太陽光発電
  • 蓄電池
  • 床下暖房
  • 全館空調

アクセス

ACCESS

予約制

北海道江別市野幌住吉町30-63

営業時間:10:00~18:00
定休日 :火・水曜日
交通アクセス:
中央バス「3番通10丁目」停まで徒歩3分、バス乗車12分、JR函館本線「野幌」駅

バーチャルツアー

VIRTUAL TOUR

間取り

PLAN

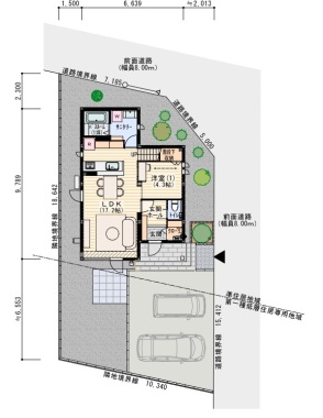
1F_間取り図
1F
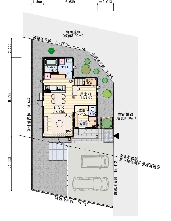
2F_間取り図
2F
16
  • 建物面積 1F:54.46㎡(16.47坪) 2F:50.51㎡(15.27坪)
  • 延べ床面積104.97㎡(31.75坪)
/
1F_間取り図
2F_間取り図
あったかハイムキャンペーン実施中
  • 事前予約_イメージ1

    デジタルギフトカード最大13,000円分プレゼント!

  • 事前予約_イメージ2

    ご希望時間に待ち時間がなくスムーズに見学

  • 事前予約_イメージ3

    計画内容に合わせて専門性の高いスタッフがご対応

  • 事前予約_イメージ4

    計画内容を事前に
    お伝えいただければ更に詳しくご案内!

※特典は後日の送信となります。※お一家族様一回限りとなります。※特典内容は予告なく変更する場合がございます。