このページの本文へ移動
  1. トップ >
  2. 展示場一覧 >
  3. 札幌市エリア ─
  4. スマートハイムプレイス北郷モデルハウスNo.1

スマートハイムプレイス北郷モデルハウスNo.1

パルフェ 住宅展示場 予約制
NEW OPEN
2026.2.21 Sat
スマートハイムプレイス北郷モデルハウスNo.1_外観パース(※パースは図面を基に描いておりますので、実際と多少異なる場合があります。)
外観パース(※パースは図面を基に描いておりますので、実際と多少異なる場合があります。)
スマートハイムプレイス北郷モデルハウスNo.1_リビング
リビング
スマートハイムプレイス北郷モデルハウスNo.1_ダイニングキッチン
ダイニングキッチン
スマートハイムプレイス北郷モデルハウスNo.1_キッチン
キッチン
スマートハイムプレイス北郷モデルハウスNo.1_キッチン
キッチン
スマートハイムプレイス北郷モデルハウスNo.1_洋室1
洋室1
スマートハイムプレイス北郷モデルハウスNo.1_サニタリー
サニタリー
スマートハイムプレイス北郷モデルハウスNo.1_バスルーム
バスルーム
スマートハイムプレイス北郷モデルハウスNo.1_1階トイレ
1階トイレ
スマートハイムプレイス北郷モデルハウスNo.1_2階トイレ
2階トイレ
スマートハイムプレイス北郷モデルハウスNo.1_主寝室
主寝室
スマートハイムプレイス北郷モデルハウスNo.1_主寝室内WIC
主寝室内WIC
スマートハイムプレイス北郷モデルハウスNo.1_洋室2
洋室2
スマートハイムプレイス北郷モデルハウスNo.1_洋室3
洋室3
スマートハイムプレイス北郷モデルハウスNo.1_玄関
玄関
スマートハイムプレイス北郷モデルハウスNo.1_玄関内WIC
玄関内WIC
スマートハイムプレイス北郷モデルハウスNo.1_外観パース(※パースは図面を基に描いておりますので、実際と多少異なる場合があります。)
外観パース(※パースは図面を基に描いておりますので、実際と多少異なる場合があります。)
スマートハイムプレイス北郷モデルハウスNo.1_外観パース(※パースは図面を基に描いておりますので、実際と多少異なる場合があります。)
外観パース(※パースは図面を基に描いておりますので、実際と多少異なる場合があります。)
16

展示場見学のポイント

POINT

コンセプトは光と開放感を感じる、吹き抜けのある空間。
2月21日よりご見学可能です。
ぜひ、現地にてご体感ください。

  • 20坪台
  • 30坪台
  • 40坪台
  • 50坪台
  • 平屋
  • 2階建て
  • 3階建て
  • 二世帯
  • デザイナーズハイム
  • 賃貸住宅
  • 傾斜屋根
  • タイル外壁
  • 太陽光発電
  • 蓄電池
  • 床下暖房
  • 全館空調

アクセス

ACCESS

予約制

北海道札幌市白石区北郷5条5丁目5-16

営業時間:10:00~18:00
定休日 :火・水
交通アクセス:
JR函館本線「白石」駅徒歩15分

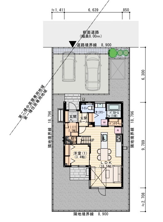
間取り

PLAN

1F_間取り図
1F
2F_間取り図
2F
16
  • 建物面積 1F:56.13㎡(16.97坪) 2F:46.23㎡(13.98坪)
  • 延べ床面積102.36㎡(30.96坪)
/
1F_間取り図
2F_間取り図
あったかハイムキャンペーン実施中
  • 事前予約_イメージ1

    デジタルギフトカード最大13,000円分プレゼント!

  • 事前予約_イメージ2

    ご希望時間に待ち時間がなくスムーズに見学

  • 事前予約_イメージ3

    計画内容に合わせて専門性の高いスタッフがご対応

  • 事前予約_イメージ4

    計画内容を事前に
    お伝えいただければ更に詳しくご案内!

※特典は後日の送信となります。※お一家族様一回限りとなります。※特典内容は予告なく変更する場合がございます。