このページの本文へ移動

北展示場

パルフェ 住宅展示場
NEW OPEN
2026.5.2 Sat
北展示場_外観パース(※パースは図面を基に描いておりますので、実際と多少異なる場合があります。)
外観パース(※パースは図面を基に描いておりますので、実際と多少異なる場合があります。)
北展示場_内観パース(※パースは図面を基に描いておりますので、実際と多少異なる場合があります。)
内観パース(※パースは図面を基に描いておりますので、実際と多少異なる場合があります。)
北展示場_内観パース(※パースは図面を基に描いておりますので、実際と多少異なる場合があります。)
内観パース(※パースは図面を基に描いておりますので、実際と多少異なる場合があります。)
16

展示場見学のポイント

POINT

5/2(土)よりグランドオープンいたします。
(既存の北展示場は29日までご見学可能です)

コンセプトはINDUSTRIAL MODERN(インダストリアルモダン)。
無骨さの中にもシンプルな美しさのあるスタイルです。
コンクリート調や黒錆風のメタル調のタイルなど無機質な素材の中に、
美しい木目のウォールナットや大理石、革などを加えて、無骨なだけじゃない上質さを加える住まいです。
ぜひ現地にてご体感ください。

  • 20坪台
  • 30坪台
  • 40坪台
  • 50坪台
  • 平屋
  • 2階建て
  • 3階建て
  • 二世帯
  • デザイナーズハイム
  • 賃貸住宅
  • 傾斜屋根
  • タイル外壁
  • 太陽光発電
  • 蓄電池
  • 床下暖房
  • 全館空調

アクセス

ACCESS

〒002-8006
北海道札幌市北区太平6条1丁目
(北海道マイホームセンター札幌北会場)

営業時間:10:00~18:00
定休日 :水曜日
交通アクセス:
JR学園都市線「百合が原」駅より徒歩15分(約1.2km)

間取り

PLAN

1F_間取り図
1F
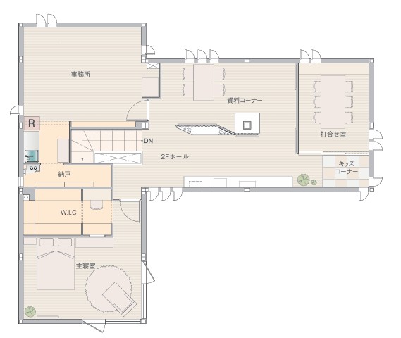
2F_間取り図
2F
16
  • 建物面積 1F:90.64㎡(27.41坪) 2F:91.96㎡(27.81坪)
  • 延べ床面積182.60㎡(55.23坪)
/
1F_間取り図
2F_間取り図
  • 事前予約_イメージ1

    デジタルギフトカード最大12,000円分プレゼント!

  • 事前予約_イメージ2

    ご希望時間に待ち時間がなくスムーズに見学

  • 事前予約_イメージ3

    計画内容に合わせて専門性の高いスタッフがご対応

  • 事前予約_イメージ4

    計画内容を事前に
    お伝えいただければ更に詳しくご案内!

※特典は後日の送信となります。※お一家族様一回限りとなります。※特典内容は予告なく変更する場合がございます。